ÚLTIMAS AÑADIDAS
Última propiedad añadida 1
REF: A950SI + INFO
Última propiedad añadida 2
REF: B933A + INFO

EL TIEMPO


FICHA COMPLETA
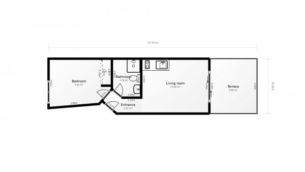
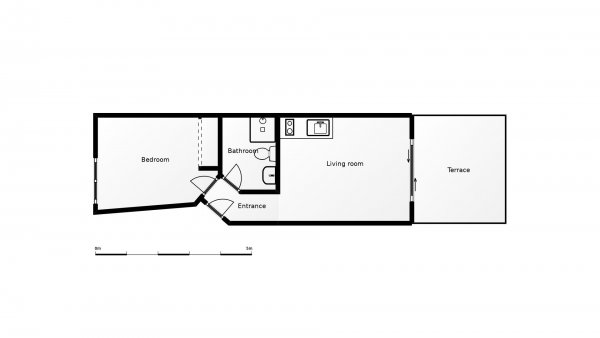
Tipo de propiedad: Apartamento
Zona: Playa del Cura
Referencia: S0205
Precio: 185.000 €
Fotos
Fotos
Detalles de la Propiedad
Precio: 185.000 €
Tipo de operación:Venta Estado:Buen estado
Dormitorios:1 M2 Construidos:34
Baños:1 Aseos:0
Piscina:Comunitaria Comunidad:120 €
Comodidades
Terraza / BalcónVistas al mar
AlarmaBalcón
EsquinaLuminoso
Trastero
360
Ubicación
Lee más acerca de Playa del Cura
La pequeña localidad de Playa del Cura se encuentra en la costa suroeste de Gran Canaria, entre Tauro y Taurito.

Playa del Cura tiene una pequeña y acogedora playa de arena volcánica.

La urbanización de la zona comienza en la playa y continúa hasta las montañas a ambos lados del valle (puede haber acceso de cuestas prolongadas para las propiedades superiores).

En este área las edificaciones son principalmente complejos de apartamentos y muchas de ellas tienen vistas al mar.

En la parte inferior de la Playa del Cura, por la carretera principal, hay un pequeño centro comercial con un supermercado, restaurantes y bares.

Este es un lugar perfecto para aquellos que disfrutan de la paz y la tranquilidad.
Propiedad en venta a traves de uno de nuestros colaboradores. Las fotos y la descripción no son nuestras y, por lo tanto, no nos hacemos responsables de su exactitud o de posibles omisiones.
Descripción
Descubre este encantador apartamento situado en la hermosa Playa del Cura, Mogán.

¡Contamos con dos unidades en venta, uno al lado de la otra!

Está en buen estado para mudarse inmediatamente. Disfruta de momentos inolvidables desde su acogedora terraza privada de más de 10 metros cuadrados mientras te relajas bajo el sol canario mirando al mar. Entrando al interior encontrarás una luminosa habitación doble, salón-cocina americana junto con un baño completo ideal para tu comodidad.

El complejo dispone de salida directa que a pocos minutos a pie te lleva directamente a la playa. Además de instalaciones comunes como la piscina, perfecta para esos días calurosos y, todo esto, acompañado por amplias comodidades como; paradas de autobuses cercanos y centro comercial con todo lo necesario al alcance.

Cabe destacar la reciente aprobación de la comunitaria, la cual permite el alquiler como vivienda vacacional;¡una excelente opción de inversión! También se han aprobado para la mejora de los accesos al complejo, beneficiando a personas de movilidad reducida.

La cuota mensual es razonable ?120?? e incluye agua y electricidad.

* Visitas a la propiedad *: Todos los interesados en ver la propiedad deberán presentar un documento de identificación válido, como DNI, NIE o pasaporte, antes de la visita. Además, se requerirá que firmen una hoja de visita al ingresar a la propiedad.

INFORMACION ADICIONAL:
- El uso de la propiedad estará siempre sujeto a la legislación vigente.
- El precio de venta no incluye impuestos ni gastos de compraventa, como el Impuesto de Transmisiones Patrimoniales (6.5% o 1% en el caso de primera transmisión más IGIC correspondiente en este último caso), honorarios del Registro de la Propiedad, notaría y gestoría.
- La información sobre la propiedad está sujeta a posibles errores y cambios involuntarios.


Los gastos de la compra no están incluidos en el precio. Estos son: Impuestos sobre transmisiones patrimoniales del 6,5% sobre el precio de compra para las propiedades de segunda mano y 8% de impuestos sobre el precio de compra para propiedades a estrenar (primera venta). Además de esto, el comprador deberá pagar los gastos de notario, registro de la propiedad y honorarios de abogados. Sobre una base media de los costes de compra se calculan entre 8-10% del precio para las compras de segunda mano y entre 10-12% en las compras a estrenar. Puede ser un poco más si el precio de compra es bajo o si el comprador decide comprar con una hipoteca. No obstante, el comprador recibirá una descripción detallada sobre los gastos de adquisición de la propiedad que desea comprar.
La propiedad se vende "ad corpus".
La información sobre la propiedad está sujeta a errores y cambios y/o retirada sin previo aviso.
CERTIFICACIÓN ENERGÉTICA:
FICHA COMPLETA
Tipo de propiedad: Apartamento
Zona: Playa del Cura
Referencia: S0205
Precio: 185.000 €
Fotos
Fotos
Detalles de la Propiedad
Precio: 185.000 €
Tipo de operación:Venta
Estado:Buen estado
Dormitorios:1
M2 Construidos:34
Baños:1
Aseos:0
Piscina:Comunitaria
Comunidad:120 €
Comodidades
Terraza / Balcón
Vistas al mar
360
Ubicación
Lee más acerca de Playa del Cura
La pequeña localidad de Playa del Cura se encuentra en la costa suroeste de Gran Canaria, entre Tauro y Taurito.

Playa del Cura tiene una pequeña y acogedora playa de arena volcánica.

La urbanización de la zona comienza en la playa y continúa hasta las montañas a ambos lados del valle (puede haber acceso de cuestas prolongadas para las propiedades superiores).

En este área las edificaciones son principalmente complejos de apartamentos y muchas de ellas tienen vistas al mar.

En la parte inferior de la Playa del Cura, por la carretera principal, hay un pequeño centro comercial con un supermercado, restaurantes y bares.

Este es un lugar perfecto para aquellos que disfrutan de la paz y la tranquilidad.
Propiedad en venta a traves de uno de nuestros colaboradores. Las fotos y la descripción no son nuestras y, por lo tanto, no nos hacemos responsables de su exactitud o de posibles omisiones.
Descripción
Descubre este encantador apartamento situado en la hermosa Playa del Cura, Mogán.

¡Contamos con dos unidades en venta, uno al lado de la otra!

Está en buen estado para mudarse inmediatamente. Disfruta de momentos inolvidables desde su acogedora terraza privada de más de 10 metros cuadrados mientras te relajas bajo el sol canario mirando al mar. Entrando al interior encontrarás una luminosa habitación doble, salón-cocina americana junto con un baño completo ideal para tu comodidad.

El complejo dispone de salida directa que a pocos minutos a pie te lleva directamente a la playa. Además de instalaciones comunes como la piscina, perfecta para esos días calurosos y, todo esto, acompañado por amplias comodidades como; paradas de autobuses cercanos y centro comercial con todo lo necesario al alcance.

Cabe destacar la reciente aprobación de la comunitaria, la cual permite el alquiler como vivienda vacacional;¡una excelente opción de inversión! También se han aprobado para la mejora de los accesos al complejo, beneficiando a personas de movilidad reducida.

La cuota mensual es razonable ?120?? e incluye agua y electricidad.

* Visitas a la propiedad *: Todos los interesados en ver la propiedad deberán presentar un documento de identificación válido, como DNI, NIE o pasaporte, antes de la visita. Además, se requerirá que firmen una hoja de visita al ingresar a la propiedad.

INFORMACION ADICIONAL:
- El uso de la propiedad estará siempre sujeto a la legislación vigente.
- El precio de venta no incluye impuestos ni gastos de compraventa, como el Impuesto de Transmisiones Patrimoniales (6.5% o 1% en el caso de primera transmisión más IGIC correspondiente en este último caso), honorarios del Registro de la Propiedad, notaría y gestoría.
- La información sobre la propiedad está sujeta a posibles errores y cambios involuntarios.


Los gastos de la compra no están incluidos en el precio. Estos son: Impuestos sobre transmisiones patrimoniales del 6,5% sobre el precio de compra para las propiedades de segunda mano y 8% de impuestos sobre el precio de compra para propiedades a estrenar (primera venta). Además de esto, el comprador deberá pagar los gastos de notario, registro de la propiedad y honorarios de abogados. Sobre una base media de los costes de compra se calculan entre 8-10% del precio para las compras de segunda mano y entre 10-12% en las compras a estrenar. Puede ser un poco más si el precio de compra es bajo o si el comprador decide comprar con una hipoteca. No obstante, el comprador recibirá una descripción detallada sobre los gastos de adquisición de la propiedad que desea comprar.
La propiedad se vende "ad corpus".
La información sobre la propiedad está sujeta a errores y cambios y/o retirada sin previo aviso.
CERTIFICACIÓN ENERGÉTICA:



Logo Real Invest Gran Canaria (pie de página)
INICIO
QUIENES SOMOS
VENDA SU PROPIEDAD
PROCESO DE COMPRA
GRAN CANARIA
TESTIMONIOS DE CLIENTES
ENLACES
CONTACTO
NUESTRAS PROPIEDADES
VENTA
Legal. @ Real Invest Gran Canaria. Todos los derechos reservados. Diseño de: Nova Design
Logo Real Invest Gran Canaria (pie de página)
Legal. @ Real Invest Gran Canaria. Todos los derechos reservados. Diseño de: Nova Design