NYOPPLASTEDE EIENDOMMER
Última propiedad añadida 1
REF: A926A + INFO
Última propiedad añadida 2
REF: V941S + INFO

VÆRET
Weather Maspalomas


EIENDOMSINFO
Type eiendom: Leilighet
Område: Playa del Cura
Referanse: A926A
Pris: 239.000 €

LEILIGHET I FØRSTE LINJE TIL HAVET MED FANTASTIK UTSIKT I PLAYA DEL CURA.

Bilder
Bilder
Eiendomsdetaljer
Pris: 239.000 €
Transaksjonstype:SalgM2 Tomt:0
M2 konstruert:43Antall soverom:1
Antall bad:1Byggeår:1997
Eiendommens stand:God standSvømmebasseng:Felles
Fellesutgifter:140 €Eiendomsskatt:515€
Eiendom bygd på turisttomt - må brukes til "turistformål"
- i henhold til spesielle vilkår/begrensninger.
Fasiliteter
HeisFørste linje
HavutsiktAircondition
Møblert
Nært stranden
Video
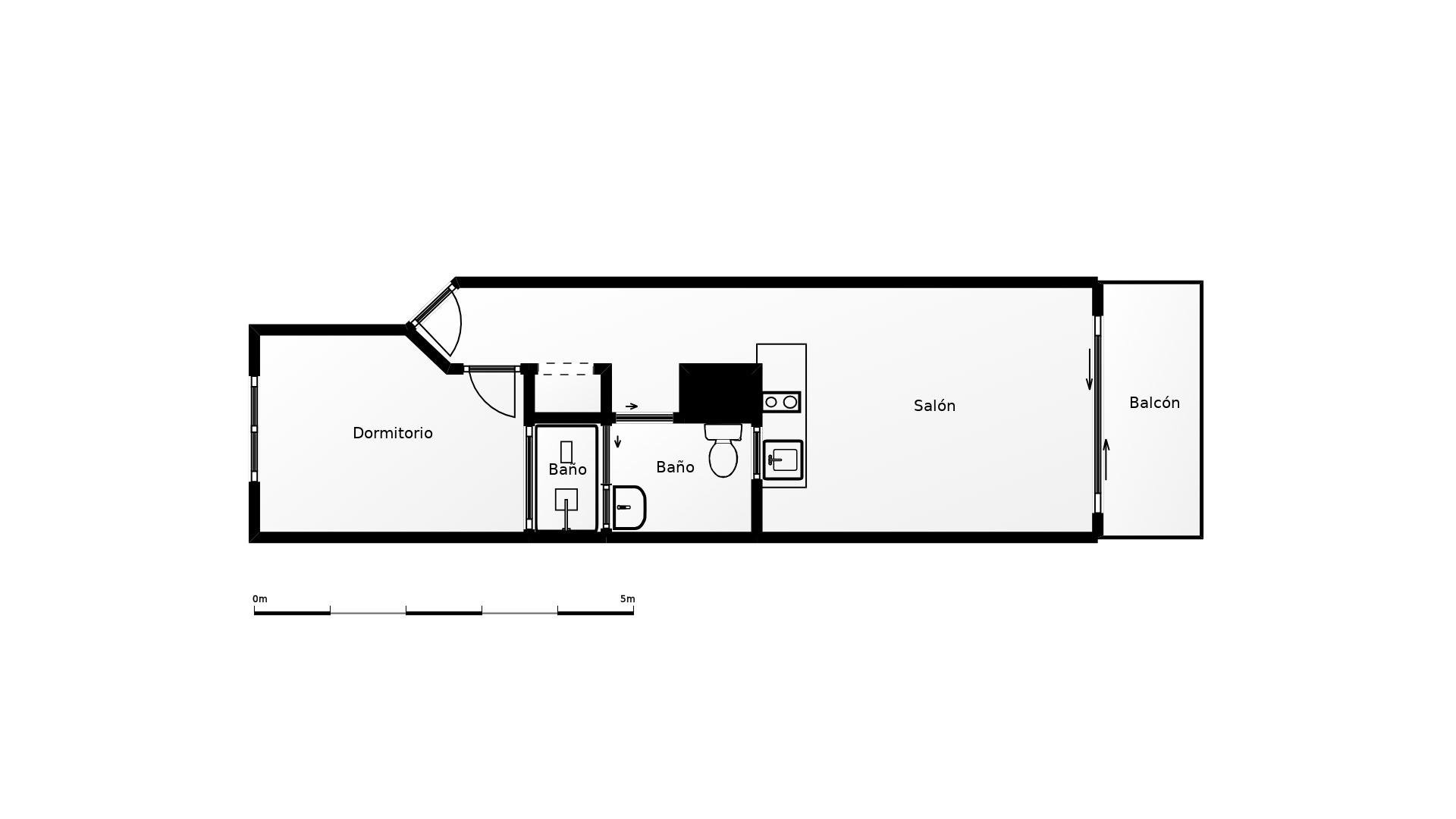
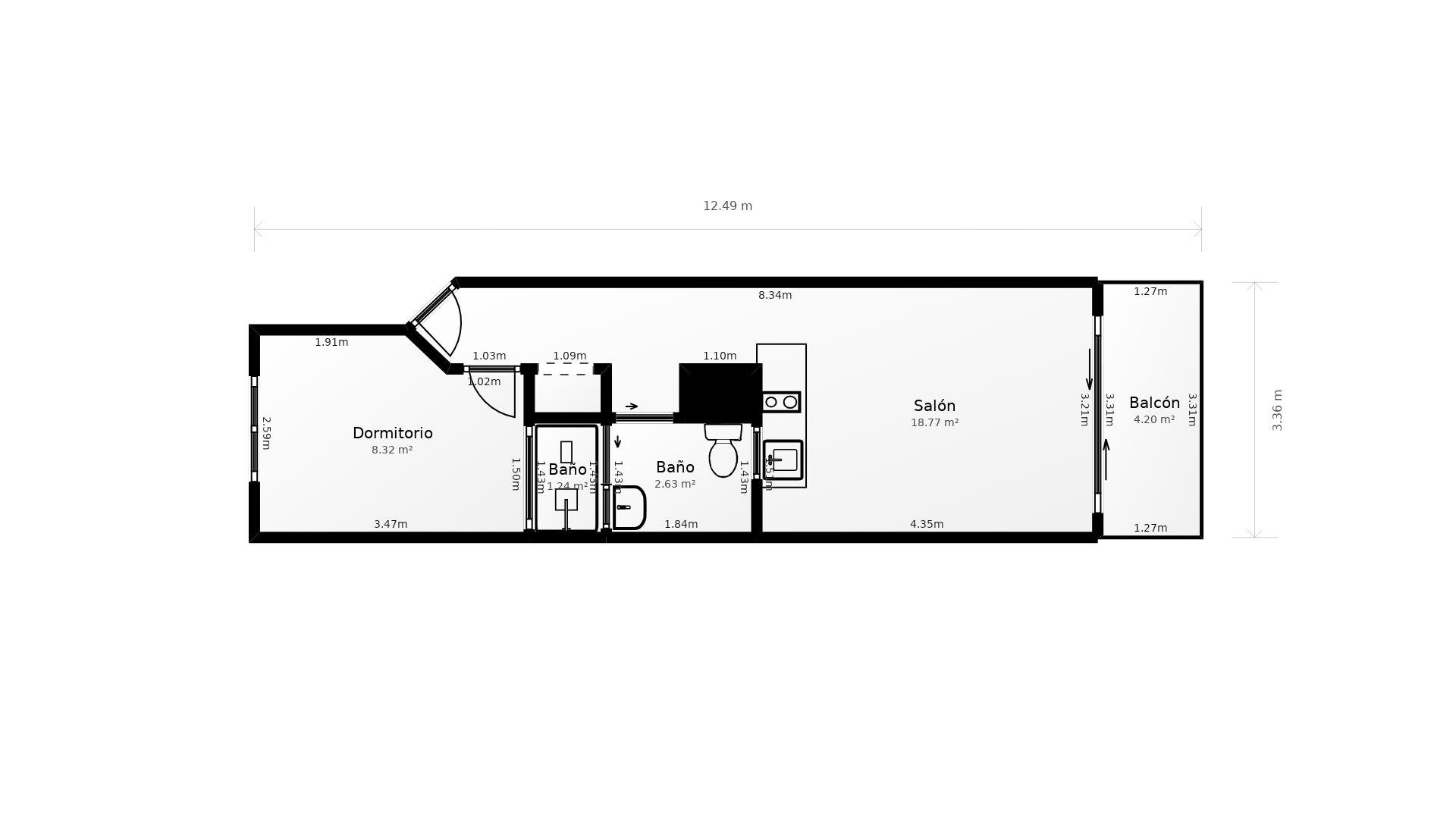
360
Plandokument
Kart
Les mer om Playa del Cura
Det lille tettstedet Playa del Cura ligger på sørvestkysten av Gran Canaria, mellom Tauro og Taurito.

Til området hører en liten, koselig sandstrand i en dyp gråbrun farge.

Bebyggelsen starter ved stranden og fortsetter oppover i fjellet på begge sider av dalen (det kan være noe bratt adkomst til de øvre eiendommene). Det er mest leilighetskomplekser i dette området og flere har fantastisk havsutsikt.

I den nedre delen av Playa del Cura, ved hovedveien, finnes et lite kjøpesenter med supermarked og noen få restauranter/barer. Dette er stedet for den som liker fred og ro.
Beskrivelse
Antatt overtakelse Begynnelse 2026

Leiligheten ligger i Cura Marina II-bygningen og har en unik og vakker beliggenhet rett ved strandpromenaden i Playa del Cura. Direkte tilgang fra komplekset. Eiendommen har en veldig god beliggenhet nær stranden og det kommersielle sentrum av Playa del Cura med supermarked, butikker og restauranter, samt bussholdeplass. Alle fasilitetene du måtte trenge under oppholdet på Gran Canaria er innen gangavstand.

Innhold

Leilighet i første etasje med adkomst fra felles gang. Bygningen har heis og et veldig stort fellesområde med svømmebasseng, solarium og bar. Tilgang fra promenaden.
Inn i leiligheten, til høyre er soverommet med dobbeltseng og kommode. Inn mot badet er det montert en glassvegg for å slippe naturlig lys inn på badet, uten behov for å skru på lyset.
I gangen er det innebygget garderobeskap på høyre side og deretter inngang til bad. Badet har skille med toalettet til venstre og til høyre er dusjen. Glass mot soverommet. Toalettplassen har også et lite vindu mot kjøkkenet for å slippe inn naturlig lys fra begge sider. Baderomsmøbler i tre med speil over.
Neste er stue-kjøkken. Først har du kjøkkenet, fullt utstyrt med følgende hvitevarer: Stekeovn, platetopp, kjøleskap, oppvaskmaskin og vaskemaskin. Kjøkkenet er romslig, godt utstyrt med skap. Det er et sammenleggbart bord med 4 stoler hvis været ikke tillater å spise på terrassen. I stuen er det sofa med bord og TV.
Fra leiligheten er det utgang til terrasse med skyvedører med to blader.

Utsikten fra leiligheten og fra uteområdet er helt unik.
Hele leiligheten er i nyanser av hvitt og tre med dekorelementer i blåtoner. Den er renovert i 2017 med fin stil og gode materialer. Den har klimaanlegg.

Fellesutgifter inkluderer vann- og strømforbruk.

Leiligheten selges delvis møblert. Nattbord og personlige eiendeler og dekorasjon er ikke inkludert.

Du kan bo i eiendommen som den er.


Plandokumentet og dets mål kan være unøyaktig. Kun illustrativt.

Kjøpsomkostninger er ikke inkludert i prisen. Disse omfatter dokumentavgift på 6,5% av kjøpesummen for bruktkjøp eller skatter/avgifter på 8% av kjøpesummen for førstegangstransaksjon. I tillegg kommer notar- og grunnboksgebyr og advokathonorar. Gjennomsnittlig kalkuleres kjøpsomkostningnene til å være mellom 8-10% av kjøpesummen for bruktkjøp og 10-12% for førstegangstransaksjoner. Unntaksvis kan det bli mer dersom kjøpesummen er lav eller at kjøper skal ha spansk banklån. Kjøper vil uansett få en detaljert oversikt over kjøpsomkostningene for eiendommen han/hun ønsker å erverve.

Eiendommen selges som den er (juridisk uttrykk om den faste eiendommens stand. Ta kontakt om ytterligere forklaring er nødvendig).

Eiendom bygd på turisttomt - må brukes til turistformål - i henhold til spesielle vilkår/ begrensninger.

Det tas forbehold om endringer, feil og mangler vedrørende informasjon gitt om eiendommen samt at den kan trekkes fra markedet uten forhåndsvarsel.

ENERGISERTIFIKAT:
EIENDOMSINFO
Type eiendom: Leilighet
Område: Playa del Cura
Referanse: A926A
Pris: 239.000 €

LEILIGHET I FØRSTE LINJE TIL HAVET MED FANTASTIK UTSIKT I PLAYA DEL CURA.
Bilder
Bilder
Eiendomsdetaljer
Pris: 239.000 €
Transaksjonstype:Salg
M2 Tomt:0
M2 konstruert:43
Antall soverom:1
Antall bad:1
Byggeår:1997
Eiendommens stand:God stand
Svømmebasseng:Felles
Fellesutgifter:140 €
Eiendomsskatt:515€
Eiendom bygd på turisttomt
må brukes til "turistformål" - i henhold til
spesielle vilkår/begrensninger.
Fasiliteter
Heis
Første linje
Havutsikt
Aircondition
Møblert
Nært stranden
Video
360
Plandokument
Kart
Les mer om Playa del Cura
Det lille tettstedet Playa del Cura ligger på sørvestkysten av Gran Canaria, mellom Tauro og Taurito.

Til området hører en liten, koselig sandstrand i en dyp gråbrun farge.

Bebyggelsen starter ved stranden og fortsetter oppover i fjellet på begge sider av dalen (det kan være noe bratt adkomst til de øvre eiendommene). Det er mest leilighetskomplekser i dette området og flere har fantastisk havsutsikt.

I den nedre delen av Playa del Cura, ved hovedveien, finnes et lite kjøpesenter med supermarked og noen få restauranter/barer. Dette er stedet for den som liker fred og ro.
Beskrivelse
Antatt overtakelse Begynnelse 2026

Leiligheten ligger i Cura Marina II-bygningen og har en unik og vakker beliggenhet rett ved strandpromenaden i Playa del Cura. Direkte tilgang fra komplekset. Eiendommen har en veldig god beliggenhet nær stranden og det kommersielle sentrum av Playa del Cura med supermarked, butikker og restauranter, samt bussholdeplass. Alle fasilitetene du måtte trenge under oppholdet på Gran Canaria er innen gangavstand.

Innhold

Leilighet i første etasje med adkomst fra felles gang. Bygningen har heis og et veldig stort fellesområde med svømmebasseng, solarium og bar. Tilgang fra promenaden.
Inn i leiligheten, til høyre er soverommet med dobbeltseng og kommode. Inn mot badet er det montert en glassvegg for å slippe naturlig lys inn på badet, uten behov for å skru på lyset.
I gangen er det innebygget garderobeskap på høyre side og deretter inngang til bad. Badet har skille med toalettet til venstre og til høyre er dusjen. Glass mot soverommet. Toalettplassen har også et lite vindu mot kjøkkenet for å slippe inn naturlig lys fra begge sider. Baderomsmøbler i tre med speil over.
Neste er stue-kjøkken. Først har du kjøkkenet, fullt utstyrt med følgende hvitevarer: Stekeovn, platetopp, kjøleskap, oppvaskmaskin og vaskemaskin. Kjøkkenet er romslig, godt utstyrt med skap. Det er et sammenleggbart bord med 4 stoler hvis været ikke tillater å spise på terrassen. I stuen er det sofa med bord og TV.
Fra leiligheten er det utgang til terrasse med skyvedører med to blader.

Utsikten fra leiligheten og fra uteområdet er helt unik.
Hele leiligheten er i nyanser av hvitt og tre med dekorelementer i blåtoner. Den er renovert i 2017 med fin stil og gode materialer. Den har klimaanlegg.

Fellesutgifter inkluderer vann- og strømforbruk.

Leiligheten selges delvis møblert. Nattbord og personlige eiendeler og dekorasjon er ikke inkludert.

Du kan bo i eiendommen som den er.


Plandokumentet og dets mål kan være unøyaktig. Kun illustrativt.

Kjøpsomkostninger er ikke inkludert i prisen. Disse omfatter dokumentavgift på 6,5% av kjøpesummen for bruktkjøp eller skatter/avgifter på 8% av kjøpesummen for førstegangstransaksjon. I tillegg kommer notar- og grunnboksgebyr og advokathonorar. Gjennomsnittlig kalkuleres kjøpsomkostningnene til å være mellom 8-10% av kjøpesummen for bruktkjøp og 10-12% for førstegangstransaksjoner. Unntaksvis kan det bli mer dersom kjøpesummen er lav eller at kjøper skal ha spansk banklån. Kjøper vil uansett få en detaljert oversikt over kjøpsomkostningene for eiendommen han/hun ønsker å erverve.

Eiendommen selges som den er (juridisk uttrykk om den faste eiendommens stand. Ta kontakt om ytterligere forklaring er nødvendig).

Eiendom bygd på turisttomt - må brukes til turistformål - i henhold til spesielle vilkår/ begrensninger.

Det tas forbehold om endringer, feil og mangler vedrørende informasjon gitt om eiendommen samt at den kan trekkes fra markedet uten forhåndsvarsel.

ENERGISERTIFIKAT:



Logo Real Invest Gran Canaria (pie de página)
HJEM
LITT OM OSS
SELG DIN EIENDOM
KJØPSPROSESSEN
GRAN CANARIA
REFERANSER
LINKER
KONTAKT
VÅRE EIENDOMMER
SALG
Juridisk. @ Real Invest Gran Canaria. All rights reserved. Design by: Nova Design
Logo Real Invest Gran Canaria (pie de página)
Juridisk. @ Real Invest Gran Canaria. All rights reserved. Design by: Nova Design