NYOPPLASTEDE EIENDOMMER
Última propiedad añadida 1
REF: V941S + INFO
Última propiedad añadida 2
REF: C626A + INFO

VÆRET
Weather Maspalomas


EIENDOMSINFO
Type eiendom: Hus
Område: Tauro
Referanse: C626A
Pris: 998.000 €

LUKSUSEIENDOM MED STOR HAGE OG PRIVAT, OPPVARMET BASSENG I TAURO

Bilder
Bilder
Eiendomsdetaljer
Pris: 998.000 €
Transaksjonstype:SalgM2 Tomt:339
M2 konstruert:188Antall soverom:5
Antall bad:4Toalett:2
Byggeår:Eiendommens stand:God stand
Svømmebasseng:PrivatFellesutgifter:0 €
Eiendomsskatt:
Fasiliteter
AleneståendeHage
Terrasse / BalkongAircondition
MøblertBalkong
LysrikBod
KjellerSolterrasse
Nært stranden
360
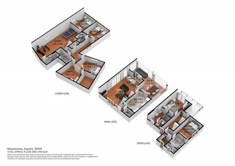
Plandokument
Kart
Les mer om Tauro
På vestsiden av det velkjente turistmålet Puerto Rico, finner vi Taurodalen som med årene har blitt et kjent og kjært tilholdssted for ganske mange nordmenn og andre nordeuropeere.

Tauro var i sin tid et meget lite samfunn, men har blitt utbygd den senere tiden, spesielt av Anfikonsernet, som har konstruert flere luksusboliger i området.

Midt i Tauro finner man Anfi Tauro Golf, en nyere 18 hulls golfbane; - meget populær blant golfentusiaster uansett kunnskapsgrad og ferdighet.

Sentralt i Tauro finnes også et Spar supermarked med spesialprodukter fra flere nordeuropeiske land.

Bebyggelsen i Tauro er gjerne preget av større boliger enn det man ellers er vant med på sydsiden av Gran Canaria; ofte pene, lavere konstruksjoner i 1 og 2 etasjer.

Stranden nedenfor Taurodalen er ikke av all verdens standard om man sammenligner med nabostranden i Amadores, men den har blitt opprustet i senere tid. Ta gjerne turen innom de kanariske strandcaféene for en lunsj i solen.

Rett bortenfor stranden ligger en av de bedre restaurantene på sørsiden av Gran Canaria, Guantanamo. Spisestedet er godt kjent for sine tapas-og kjøttretter.

Det er lagt fremtidige planer om en marina i området, dog vet man ikke når dette vil bli realisert.
Beskrivelse
LUKSUSEIENDOM MED STOR HAGE OG PRIVAT, OPPVARMET BASSENG I TAURO


Beliggenhet

Eiendommen ligger i den øvre delen av gamle Tauro, i meget rolige omgivelser. Gangavstand til supermarkedet Spar, restauranten i Tauro og golfbanene.

Amadores er nærmeste tettsted. De fleste vil trolig foretrekke bil/taxi som transportmiddel ettersom det er et stykke å gå. (Eiendommen har egen parkeringsplass).

Det er planlagt en luksusmarina langs Tauro-kysten med strand og restauranter etc.



Adkomst/Tomteforhold

Ca 35 minutters kjøring fra flyplassen.



Huset består av:

Stor takterrasse

I andre etasje er det 2 store soverom med dobbeltsenger og nattbord. Innebygd skap. Vinduer for maksimal ventilasjon. Hvert soverom har eget bad.

Ett bad har en brunaktig farge med en moderne, hvit kontrast. Det er veldig romslig og består av et boblebad, massasjedusj, dobbelvask etc. Toalett og bidet i et separat rom.

Det andre badet er flislagt i nyanser av grått og tilbyr en spesiell romslig dusj og dobbel vask etc. Toalett og bidet i et separat rom.

Fra ett av soverommene og fra gangen har du tilgang til en balkong; perfekt for å nyte morgenkaffen når solen går opp.

Det er en innvendig trapp i tre ned til hovedetasjen.

Stuen er omgitt av glassdører / vinduer som gjør det lyst og vakkert inne. Du har flere direkte utganger til den velstelte hagen og terrassene.

Ved siden av stuen finner du kjøkkenet. Det er helt adskilt fra stuen og spisestuen. Kjøkkenet er fullt utstyrt med alle hvitevarer; inkludert, innebygd oppvaskmaskin, vitrokeramisk komfyr, vifte, kjøleskap med fryserom, mikrobølgeovn (de siste apparatene i stål). Underskapene på kjøkkenet er hvite, mens overskapene er i frostet glass - noe som gir dem en moderne touch. Kjøkkenet er så romslig at det er god plass til et lite kjøkkenbord ved siden av innredningen.

Gjestetoalett tilgjengelig fra stuen / kjøkken / inngangen.

På dette nivået har du en vakker og bevart hage ute, delvis flislagt og delvis dekket med kunstgress. Eieren har også plantet hawaii-roser og andre blomster / tre i hagen for å gi farge til uteområdet. Hagen går rundt i huset og eiendommen er helt adskilt fra andre hus. Det er et privat svømmebasseng i hagen med et beskyttende deksel (når den ikke er i bruk). Bassenget har sin egen varmepumpe som skrus på automatisk dersom temperaturen i vannet faller under 27/28 grader.

I kjelleren er det mye plass som fordeles som følger:
Fritidsrom med treningsstudio. 3 svært romslige soverom. I denne etasjen er det to bad og ett toalett. Her har du også to rom som for tiden brukes som lagerrom. Disse kan ombygges til et ekstra soverom.

Kjelleren er registrert som en stue og rommene er innredet som soverom , men er ikke registrert som sådan i skjøtet.
Ifølge landregistret har huset en konstruert overflate på 187.94 m² og en nytteoverflate på 162.16 m². I virkeligheten er det ca 307,90 m² konstruert og har en nytteoverflate på ca 267,87 m².)

Huset er bygget i høykvalitets-materiale og er av de nyere byggene i denne delen av Tauro.

Aluminiumsvindu og dører (vedlikeholdsfrie). Persienner.

Air condition i begge soverommene oppe og stuen nede.

Eiendommen er perfekt for de som ønsker luksus og privatliv, samt sol hele året.


Plandokumentet og dets mål kan være unøyaktig. Kun illustrativt.

Kjøpsomkostninger er ikke inkludert i prisen. Disse omfatter dokumentavgift på 6,5% av kjøpesummen for bruktkjøp eller skatter/avgifter på 8% av kjøpesummen for førstegangstransaksjon. I tillegg kommer notar- og grunnboksgebyr og advokathonorar. Gjennomsnittlig kalkuleres kjøpsomkostningnene til å være mellom 8-10% av kjøpesummen for bruktkjøp og 10-12% for førstegangstransaksjoner. Unntaksvis kan det bli mer dersom kjøpesummen er lav eller at kjøper skal ha spansk banklån. Kjøper vil uansett få en detaljert oversikt over kjøpsomkostningene for eiendommen han/hun ønsker å erverve.

Eiendommen selges som den er (juridisk uttrykk om den faste eiendommens stand. Ta kontakt om ytterligere forklaring er nødvendig).

Det tas forbehold om endringer, feil og mangler vedrørende informasjon gitt om eiendommen samt at den kan trekkes fra markedet uten forhåndsvarsel.
ENERGISERTIFIKAT:
UNDER UTFORMING
EIENDOMSINFO
Type eiendom: Hus
Område: Tauro
Referanse: C626A
Pris: 998.000 €

LUKSUSEIENDOM MED STOR HAGE OG PRIVAT, OPPVARMET BASSENG I TAURO
Bilder
Bilder
Eiendomsdetaljer
Pris: 998.000 €
Transaksjonstype:Salg
M2 Tomt:339
M2 konstruert:188
Antall soverom:5
Antall bad:4
Toalett:2
Byggeår:
Eiendommens stand:God stand
Svømmebasseng:Privat
Fellesutgifter:0 €
Fasiliteter
Alenestående
Hage
Terrasse / Balkong
Aircondition
Møblert
Nært stranden
360
Plandokument
Kart
Les mer om Tauro
På vestsiden av det velkjente turistmålet Puerto Rico, finner vi Taurodalen som med årene har blitt et kjent og kjært tilholdssted for ganske mange nordmenn og andre nordeuropeere.

Tauro var i sin tid et meget lite samfunn, men har blitt utbygd den senere tiden, spesielt av Anfikonsernet, som har konstruert flere luksusboliger i området.

Midt i Tauro finner man Anfi Tauro Golf, en nyere 18 hulls golfbane; - meget populær blant golfentusiaster uansett kunnskapsgrad og ferdighet.

Sentralt i Tauro finnes også et Spar supermarked med spesialprodukter fra flere nordeuropeiske land.

Bebyggelsen i Tauro er gjerne preget av større boliger enn det man ellers er vant med på sydsiden av Gran Canaria; ofte pene, lavere konstruksjoner i 1 og 2 etasjer.

Stranden nedenfor Taurodalen er ikke av all verdens standard om man sammenligner med nabostranden i Amadores, men den har blitt opprustet i senere tid. Ta gjerne turen innom de kanariske strandcaféene for en lunsj i solen.

Rett bortenfor stranden ligger en av de bedre restaurantene på sørsiden av Gran Canaria, Guantanamo. Spisestedet er godt kjent for sine tapas-og kjøttretter.

Det er lagt fremtidige planer om en marina i området, dog vet man ikke når dette vil bli realisert.
Beskrivelse
LUKSUSEIENDOM MED STOR HAGE OG PRIVAT, OPPVARMET BASSENG I TAURO


Beliggenhet

Eiendommen ligger i den øvre delen av gamle Tauro, i meget rolige omgivelser. Gangavstand til supermarkedet Spar, restauranten i Tauro og golfbanene.

Amadores er nærmeste tettsted. De fleste vil trolig foretrekke bil/taxi som transportmiddel ettersom det er et stykke å gå. (Eiendommen har egen parkeringsplass).

Det er planlagt en luksusmarina langs Tauro-kysten med strand og restauranter etc.



Adkomst/Tomteforhold

Ca 35 minutters kjøring fra flyplassen.



Huset består av:

Stor takterrasse

I andre etasje er det 2 store soverom med dobbeltsenger og nattbord. Innebygd skap. Vinduer for maksimal ventilasjon. Hvert soverom har eget bad.

Ett bad har en brunaktig farge med en moderne, hvit kontrast. Det er veldig romslig og består av et boblebad, massasjedusj, dobbelvask etc. Toalett og bidet i et separat rom.

Det andre badet er flislagt i nyanser av grått og tilbyr en spesiell romslig dusj og dobbel vask etc. Toalett og bidet i et separat rom.

Fra ett av soverommene og fra gangen har du tilgang til en balkong; perfekt for å nyte morgenkaffen når solen går opp.

Det er en innvendig trapp i tre ned til hovedetasjen.

Stuen er omgitt av glassdører / vinduer som gjør det lyst og vakkert inne. Du har flere direkte utganger til den velstelte hagen og terrassene.

Ved siden av stuen finner du kjøkkenet. Det er helt adskilt fra stuen og spisestuen. Kjøkkenet er fullt utstyrt med alle hvitevarer; inkludert, innebygd oppvaskmaskin, vitrokeramisk komfyr, vifte, kjøleskap med fryserom, mikrobølgeovn (de siste apparatene i stål). Underskapene på kjøkkenet er hvite, mens overskapene er i frostet glass - noe som gir dem en moderne touch. Kjøkkenet er så romslig at det er god plass til et lite kjøkkenbord ved siden av innredningen.

Gjestetoalett tilgjengelig fra stuen / kjøkken / inngangen.

På dette nivået har du en vakker og bevart hage ute, delvis flislagt og delvis dekket med kunstgress. Eieren har også plantet hawaii-roser og andre blomster / tre i hagen for å gi farge til uteområdet. Hagen går rundt i huset og eiendommen er helt adskilt fra andre hus. Det er et privat svømmebasseng i hagen med et beskyttende deksel (når den ikke er i bruk). Bassenget har sin egen varmepumpe som skrus på automatisk dersom temperaturen i vannet faller under 27/28 grader.

I kjelleren er det mye plass som fordeles som følger:
Fritidsrom med treningsstudio. 3 svært romslige soverom. I denne etasjen er det to bad og ett toalett. Her har du også to rom som for tiden brukes som lagerrom. Disse kan ombygges til et ekstra soverom.

Kjelleren er registrert som en stue og rommene er innredet som soverom , men er ikke registrert som sådan i skjøtet.
Ifølge landregistret har huset en konstruert overflate på 187.94 m² og en nytteoverflate på 162.16 m². I virkeligheten er det ca 307,90 m² konstruert og har en nytteoverflate på ca 267,87 m².)

Huset er bygget i høykvalitets-materiale og er av de nyere byggene i denne delen av Tauro.

Aluminiumsvindu og dører (vedlikeholdsfrie). Persienner.

Air condition i begge soverommene oppe og stuen nede.

Eiendommen er perfekt for de som ønsker luksus og privatliv, samt sol hele året.


Plandokumentet og dets mål kan være unøyaktig. Kun illustrativt.

Kjøpsomkostninger er ikke inkludert i prisen. Disse omfatter dokumentavgift på 6,5% av kjøpesummen for bruktkjøp eller skatter/avgifter på 8% av kjøpesummen for førstegangstransaksjon. I tillegg kommer notar- og grunnboksgebyr og advokathonorar. Gjennomsnittlig kalkuleres kjøpsomkostningnene til å være mellom 8-10% av kjøpesummen for bruktkjøp og 10-12% for førstegangstransaksjoner. Unntaksvis kan det bli mer dersom kjøpesummen er lav eller at kjøper skal ha spansk banklån. Kjøper vil uansett få en detaljert oversikt over kjøpsomkostningene for eiendommen han/hun ønsker å erverve.

Eiendommen selges som den er (juridisk uttrykk om den faste eiendommens stand. Ta kontakt om ytterligere forklaring er nødvendig).

Det tas forbehold om endringer, feil og mangler vedrørende informasjon gitt om eiendommen samt at den kan trekkes fra markedet uten forhåndsvarsel.
ENERGISERTIFIKAT:
UNDER UTFORMING



Logo Real Invest Gran Canaria (pie de página)
HJEM
LITT OM OSS
SELG DIN EIENDOM
KJØPSPROSESSEN
GRAN CANARIA
REFERANSER
LINKER
KONTAKT
VÅRE EIENDOMMER
SALG
Juridisk. @ Real Invest Gran Canaria. All rights reserved. Design by: Nova Design
Logo Real Invest Gran Canaria (pie de página)
Juridisk. @ Real Invest Gran Canaria. All rights reserved. Design by: Nova Design